Liebhaberobjekt: Traumhaft wohnen über den Dächern mit Stadtblick, Loggia, Lift | WAGNER IMMOBILIEN
Objektart
Adresse
Objektdaten
Informationen
Ausstattung
Details
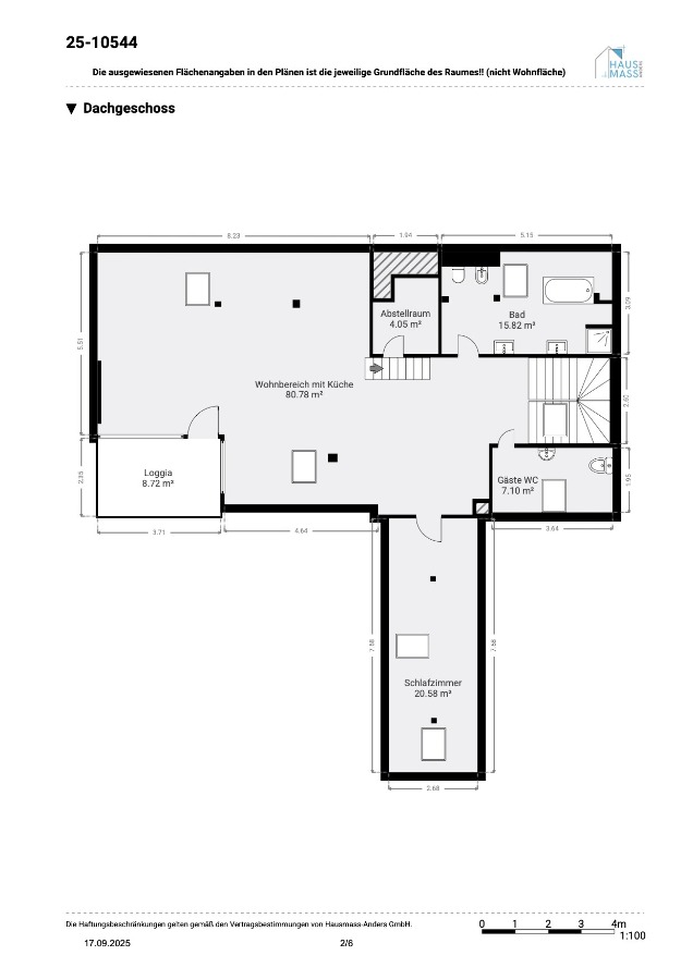
Diese außergewöhnliche Dachgeschosswohnung in einem stilvollen, denkmalgeschützten Altbau ist ein Liebhaberobjekt. Sie besticht durch ihre einzigartige Architektur und den besonderen Charme des verkleideten Dachgebälks.
Die Wohnung verfügt über großzügige Fensterflächen in drei Himmelsrichtungen, was für eine besonders angenehme Lichtdurchflutung sorgt und zugleich eine optimale Querlüftung ermöglicht. Der Blick aus den Fenstern ermöglicht einen traumhaften Blick über die Stadt.
Der offen gestaltete Wohn- und Essbereich mit Einbauküche schafft ein luftiges Wohngefühl und ist der ideale Mittelpunkt für schönes Wohnen. Von hier aus gelangen Sie auf die uneinsehbare Loggia, die zu entspannten Stunden im Freien einlädt.
Das große Tageslichtbad ist ein wahres Wellness-Highlight: Es verfügt über eine Badewanne, separate Dusche, WC und Bidet. Ein zusätzliches Gäste-WC mit praktischem Waschmaschinenanschluss rundet das Raumangebot ab.
Über eine Treppe erreichen Sie die Galerie, die sich perfekt als Arbeits- oder Rückzugsbereich eignet. Trotz der zentralen Lage genießen Sie hier absolute Ruhe.
Die Wohnung ist bereits frei und kann kurzfristig bezogen werden.
Die Wohnflächen wurden nach der aktuellen Wohnflächenverordnung (WoFlV) berechnet:
104,41 m² Wohnfläche nach WoFlV
11,96 m² Nutzfläche
15,67 m² wohnwirtschaftlich ausgebaute Nutzfläche
Der Kaufpreis setzt sich zusammen aus 399.000 EUR für die Wohnung und 10.000 EUR für den Duplexparker.
Highlights im Überblick:
- Dachgeschosswohnung mit Galerie
- lichtdurchflutet, ruhig und charmant durch verkleidetes Dachgebälk
- offene Einbauküche
- uneinsehbare Loggia mit Stadtblick
- großes Tageslichtbad mit 2 Waschtischen, Wanne, Dusche, WC & Bidet
- Gäste-WC mit Waschmaschinenanschluss
- neuer Laminatboden
- mit Einbauschränken im Flur und auf der Galerie (ohne Bett und Regale im Schlafzimmer)
- neue, zweifach verglaste Dachfenster mit elektrischen Rollläden mit Solarantrieb
- erneuerte Bodenplatten in der Loggia
- denkmalgeschützter Altbau
Wenn Ihr Auto über eine maximale Höhe von 1,50 m verfügt, können Sie dieses im Duplex-Parker im Hof parken.
Da die Fassade denkmalgeschützt ist, gibt es keinen Energieausweis.
Die Bahnhofstraße 48 liegt sehr zentral in Wiesbaden, nahe dem Hauptbahnhof. Die Innenstadt ist fußläufig gut erreichbar, ebenso Sehenswürdigkeiten, Gastronomie und Läden.
Das Einkaufszentrum Lilien-Carré am Bahnhof bietet eine große Auswahl an Geschäften, wie REWE, Aldi und Rossmann. Ebenso gibt es hier viele kleine Restaurants.
Um frische Luft zu schnappen, kann man in die nur wenige Schritte entfernte Grünfläche Reisinger-Anlage laufen.
Der Flughafen Frankfurt ist mit dem Zug gut angebunden. Es bestehen direkte Verbindungen, die Fahrtzeit liegt bei etwa 29 Minuten ab Wiesbaden Hauptbahnhof.
Wiesbaden verfügt über mehrere Autobahnanschlüsse:
- A66 ist eine zentrale Route, z. B. über die Anschlussstelle ?Wiesbaden-Mainzer Straße?.
- A643 verbindet Wiesbaden über die Rheinbrücke Schierstein mit dem Mainzer Raum.
- Die A671 stellt eine Verbindung vom Stadtzentrum von Wiesbaden hin zum Mainspitz-Dreieck her.
Fazit
Bahnhofstraße 48 ist eine tolle Adresse, wenn man in Wiesbaden zentral wohnen möchte: gute Nahversorgung, vielfältige Kultur- & Freizeitmöglichkeiten, sehr gute Verkehrsanbindung sowohl mit Zug als auch über die Autobahnen. Perfekt geeignet, wenn man schnell in die Innenstadt, zum Hauptbahnhof oder in das Rhein-Main-Gebiet gelangen möchte.
Für eine schnelle Bearbeitung Ihrer Anfrage nutzen Sie bitte das Kontaktformular und geben Sie Ihre Telefonnummer an, wenn Sie eine Besichtigung wünschen.
Alle Angaben sind ohne Gewähr und basieren ausschließlich auf Informationen, die vom Auftraggeber zur Verfügung gestellt wurden. Das Unternehmen WAGNER IMMOBILIEN, Immobilienmakler in Wiesbaden, übernimmt keine Gewähr für die Vollständigkeit, Richtigkeit und Aktualität dieser Angaben. Dies trifft auch für Grundrisse zu. Überarbeitete Grundrisse können Abweichungen vom tatsächlichen Grundriss enthalten. Ebenso wird für nicht bekannte Umstände keine Haftung übernommen.
Ansprechpartner
Mobil: +49 162 2640513
c.hornung@makler-wiesbaden.de
Ich bin damit einverstanden, dass mir Karten von Google angezeigt werden. Es gelten die Datenschutzbedingungen von Google (https://policies.google.com/privacy).
Ich bin einverstanden