Objektart
Adresse
Objektdaten
Informationen
Ausstattung
Details
Die Wohnung befindet sich im Erdgeschoss eines denkmalgeschützten Mittelhauses in der Scharnhorststraße im Wiesbadener Westend. Sie hat eine normale Ausstattung und befindet sich in einem sehr gepflegten Zustand.
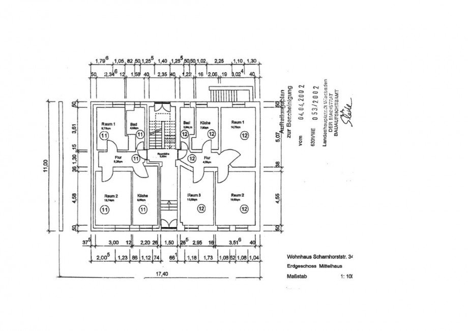
Eine genaue Raumaufteilung finden Sie im Grundriss (Wohnung Nr. 12)
Die Wohnung ist an eine vierköpfige Familie gut vermietet. Daher eignet sie sich hervorragend als Kapitalanlage für Anfänger als auch zur Erweiterung eines Immobilienbestands.
Die Jahresnettomiete beträgt 7.560 EUR und ab dem 01.01.2026 8.436 EUR.
- Bad mit Tageslicht und Badewanne
- Fußboden: Laminat und Fliesen
- Doppelglas-Kunststofffenster aus den 90er Jahren
- gemeinschaftlich genutzter Innenhof
Das Wiesbadener Westend zählt zu den zentralsten und urbansten Stadtteilen der hessischen Landeshauptstadt. Geprägt von historischen Gebäuden aus der Gründerzeit, bietet der Stadtteil eine dichte, lebendige Atmosphäre mit multikulturellem Flair. Die zentrale Lage bietet eine hervorragende Anbindung an den öffentlichen Nahverkehr ? der Hauptbahnhof und zahlreiche Buslinien sind nur wenige Minuten entfernt. Die Innenstadt, zahlreiche Cafés, Restaurants und kleine Geschäfte des täglichen Bedarfs sind fußläufig erreichbar.
Für eine schnelle Bearbeitung Ihrer Anfrage nutzen Sie bitte das Kontaktformular und geben Sie Ihre Telefonnummer an, wenn Sie eine Besichtigung wünschen.
Alle Angaben sind ohne Gewähr und basieren ausschließlich auf Informationen, die vom Auftraggeber zur Verfügung gestellt wurden. Das Unternehmen WAGNER IMMOBILIEN, Immobilienmakler in Wiesbaden, übernimmt keine Gewähr für die Vollständigkeit, Richtigkeit und Aktualität dieser Angaben. Dies trifft auch für Grundrisse zu. Überarbeitete Grundrisse können Abweichungen vom tatsächlichen Grundriss enthalten. Ebenso wird für nicht bekannte Umstände keine Haftung übernommen.
Ansprechpartner
Mobil: +49 152 33794534
a.rodin@makler-wiesbaden.de
Ich bin damit einverstanden, dass mir Karten von Google angezeigt werden. Es gelten die Datenschutzbedingungen von Google (https://policies.google.com/privacy).
Ich bin einverstanden