Objektart
Adresse
Objektdaten
Ausstattung
Details
The landlord will accept an American rental contract. We do speak English in our office and can assist you with the entire processing.
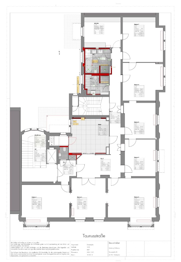
The apartment is located in a majestic building and covers an entire floor. There are 5 bedrooms, plus 3 connected rooms for living and dining, 2 bathrooms, a guest toilet, a large kitchen, a laundry room and a coat closet.
Additionally, there is a good size cellar for storage and there are two parking spaces behind the house, accessible through a drive through with an electric gate (which opens by remote).
______________________________________________________________________________________
Die Wohnung befindet sich in einem majestätischen Gebäude und erstreckt sich über eine ganze Etage. Es gibt 5 Schlafzimmer, plus 3 verbundene Zimmer für Wohn-und Esszimmer, 2 Badezimmer, ein Gäste-WC, eine große Küche, eine Waschküche und abgetrennte Garderobe.
Zusätzlich gibt es einen großen Keller und hinter dem Haus befinden sich zwei Parkplätze, die durch eine Durchfahrt mit einem elektrischen Tor (das per Fernbedienung geöffnet wird) zugänglich sind.
- large built-in kitchen (included in the rent)
- wooden floors in all rooms
- 2 modern bathrooms
- 1 guest toilet
- a space for coat racks
- ceiling height almost 12 feet
- 2 small balconies
- TV: cable
- elevator directly to the entrance of the apartment
- 2 parking spaces (1 garage, 1 outside space)
- an inner large courtyard can be used if so desired (common area)
______________________________________________________________________________________
- große Einbauküche (in der Miete enthalten)
- Holzböden in allen Zimmern
- 2 moderne Badezimmer
- 1 Gäste-WC
- eine geschlossene Garderobe am Eingangsbereich
? Deckenhöhe über 3,50 Meter
? 2 kleine Balkone
? TV: Kabel
? Aufzug direkt zum Eingang der Wohnung
? 2 Parkplätze (1 Garage, 1 Außenstellplatz)
? ein Innenhof existiert, der von den Mietern im Haus genutzt werden kann
This beautiful restored building is located in one of the finest areas of Wiesbaden downtown, the renown Taunusstraße. The apartment is in walking distance of the pedestrian shopping. There is a park only minutes away, the famous Neropark. A variety of restaurants, such as Thai, Sushi, Italien, Persien, Turkish and more are close by.
______________________________________________________________________________________
Dieses wunderschön restaurierte Gebäude befindet sich in einer der schönsten Gegenden der Wiesbadener Innenstadt, der bekannten Taunusstraße. Die Wohnung liegt in fußläufiger Entfernung zur Fußgängerzone. Nur wenige Minuten entfernt befindet sich ein Park, der bekannte Neropark. Eine Vielzahl von Restaurants wie Thai, Sushi, Italienisch, Persisch, Türkisch und mehr befinden sich in der Nähe.
Above mentioned utility charges, plus the costs for gas and electricity.
NOTE: The cold rent and ancillary costs specified in the exposé apply to German rental contracts. The costs in American leases from the Housing Office are divided differently, but remain the same in total. Example:
German contract: basic rent ? 2,500 plus additional costs ? 500 = total rent ? 3,000
American contract: basic rent ? 2,800 incl. additional costs plus consumption costs ? 200 = total rent ? 3,000
For a quick processing of your inquiry please use the contact form and enter your telephone number.
All information is given without any guarantee and is based exclusively on information provided by the customer (landlord). The company WAGNER IMMOBILIEN assumes no liability for the completeness, correctness and up-to-dateness of this information. This also applies to ground plans. Revised ground plans may contain deviations from the actual floor plan. No liability is assumed for unknown circumstances.
______________________________________________________________________________________
Für eine schnelle Bearbeitung Ihrer Anfrage nutzen Sie bitte das Kontaktformular und geben Sie Ihre Telefonnummer an, wenn Sie eine Besichtigung wünschen.
Für Ihre Bewerbung benötigen Sie eine Selbstauskunft, die letzten 3 Gehaltsabrechnungen und eine SCHUFA-Auskunft (nicht älter als 3 Monate).
Alle Angaben sind ohne Gewähr und basieren ausschließlich auf Informationen, die vom Auftraggeber zur Verfügung gestellt wurden. Das Unternehmen WAGNER IMMOBILIEN übernimmt keine Gewähr für die Vollständigkeit, Richtigkeit und Aktualität dieser Angaben. Dies trifft auch für Grundrisse zu. Überarbeitete Grundrisse können Abweichungen vom tatsächlichen Grundriss enthalten. Ebenso wird für nicht bekannte Umstände keine Haftung übernommen.
Ansprechpartner
Mobil: +49 162 2640513
c.hornung@makler-wiesbaden.de
