Moderne 3-Zimmer-Wohnung mit Balkon, Carport & EBK in gepflegtem Haus (Bj. 2004) | WAGNER IMMOBILIEN
Objektart
Adresse
Objektdaten
Informationen
Ausstattung
Details
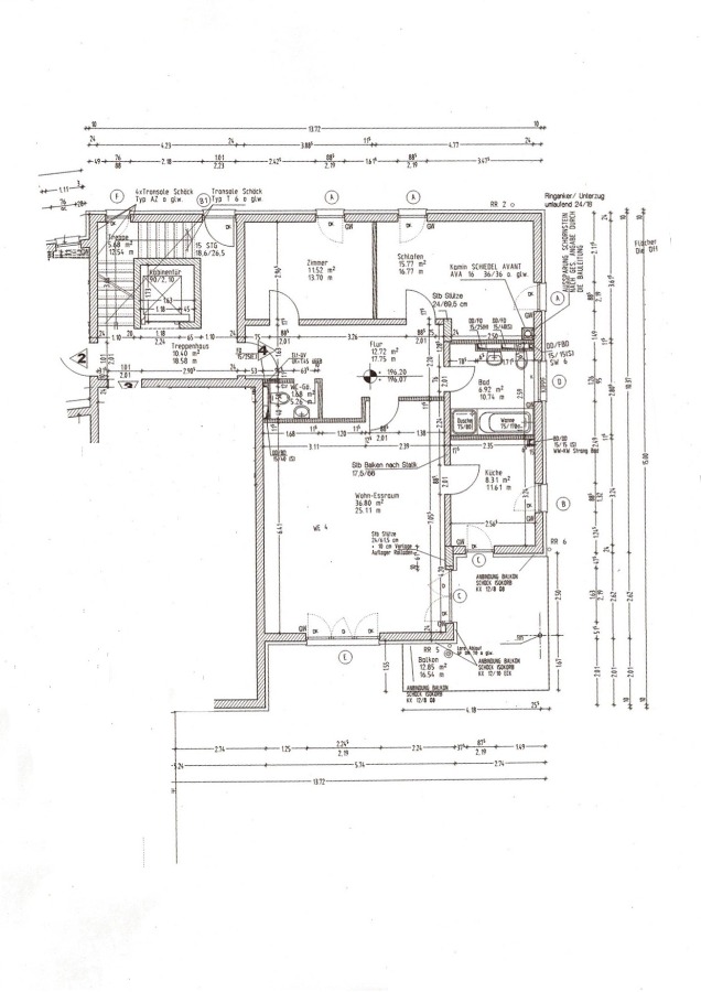
Das im Jahr 2004 erbaute Mehrfamilienhaus bietet moderne und komfortable Wohnbedingungen in gepflegtem Umfeld. Die helle 3-Zimmer-Wohnung überzeugt durch eine durchdachte Raumaufteilung: ein großzügiger Wohn- und Essbereich mit angegliederter Küche bildet das Herzstück der Wohnung. Zwei gut geschnittene Schlafzimmer, ein Tageslichtbad mit Badewanne und Dusche sowie ein überdachter, nach Süden ausgerichteter Balkon bieten ein angenehmes Wohngefühl. Der Balkon ist sowohl vom Wohnzimmer als auch von der Küche aus begehbar. Ein eigener Kellerraum sowie ein praktischer Carport-Stellplatz direkt am Haus gehören ebenfalls zur Wohnung. Die Wohnanlage verfügt zudem über einen Personenaufzug, der einen barrierearmen Zugang zu allen Etagen ermöglicht.
- Einbauküche mit Geräten
- Parkettböden in allen Räumen
- Rollläden an allen Fenstern
- Tageslichtbad mit Dusche und Wanne
- separates Gäste-WC
- südlich ausgerichteter Balkon (überdacht)
- Carport-Stellplatz
- trockener Kellerraum
- separater Fahrradabstellraum
- Personenaufzug
Die Wohnung befindet sich im Hochparterre eines gepflegten Mehrfamilienhauses im beliebten Wiesbadener Stadtteil Bierstadt. Die Lage bietet hervorragende Einkaufsmöglichkeiten ? sämtliche großen Supermärkte befinden sich in unmittelbarer Nähe. Dank der schnellen Anbindung an die A66 sowie der guten Erreichbarkeit der Wiesbadener Innenstadt profitieren Sie von einer idealen Verkehrsanbindung. Eine nahegelegene Bushaltestelle sorgt für eine zügige Verbindung zum Hauptbahnhof. Zahlreiche Restaurants und weitere Einrichtungen des täglichen Bedarfs sind fußläufig erreichbar.
Für eine schnelle Bearbeitung Ihrer Anfrage nutzen Sie bitte das Kontaktformular und geben Sie Ihre Telefonnummer an, wenn Sie eine Besichtigung wünschen.
Für Ihre Bewerbung benötigen Sie eine Selbstauskunft, die letzten 3 Gehaltsabrechnungen und eine SCHUFA-Auskunft (nicht älter als 3 Monate).
Alle Angaben sind ohne Gewähr und basieren ausschließlich auf Informationen, die vom Auftraggeber zur Verfügung gestellt wurden. Das Unternehmen WAGNER IMMOBILIEN übernimmt keine Gewähr für die Vollständigkeit, Richtigkeit und Aktualität dieser Angaben. Dies trifft auch für Grundrisse zu. Überarbeitete Grundrisse können Abweichungen vom tatsächlichen Grundriss enthalten. Ebenso wird für nicht bekannte Umstände keine Haftung übernommen.
Ansprechpartner
Mobil: +49 162 2640513
c.hornung@makler-wiesbaden.de
Energieausweis (Verbrauchsausweis)
69 kWh / (m²*a) Energieverbrauchskennwert
69 kWh / (m²*a) Energieverbrauchskennwert
69 kWh / (m²*a) Energieverbrauchskennwert
Weitere Informationen
| Wesentlicher Energieträger | Gas |
| Energieausweis Ausstelldatum | 2017-05-15 |
| Energieausweis gültig bis | 15.05.2027 |
| Energieausweis Jahrgang | ab dem 1.5.2014 |
| Energieausweis Werteklasse | B |
| Heizung | Zentralheizung |
| Befeuerung | Gas |
