Stilvolles Wohnen in City-Ost ? Altbauvilla-Etage mit Stellplatz | WAGNER IMMOBILIEN
Objektart
Adresse
Objektdaten
Informationen
Ausstattung
Details
Diese stilvolle Etagenwohnung in einer liebevoll sanierten Altbauvilla vereint klassischen Charme mit modernem Wohnkomfort. Großzügige Raumaufteilung, hohe Decken und ausgesuchte Details schaffen ein exklusives Ambiente für anspruchsvolle Bewohner. Die Wohnung eignet sich ideal für Einzelpersonen oder Paare mit gehobenem Lebensstil, die Wert auf eine zentrale und zugleich ruhige Lage legen.
Das Gebäude umfasst insgesamt drei Wohneinheiten. Die Wohnung befindet sich im 1. Obergeschoss und und nimmt die gesamte Etage ein.
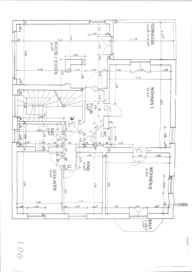
Die Wohnung verfügt über insgesamt vier Zimmer: drei Schlafzimmer, ein Badezimmer, ein Gäste-WC, eine offen gestaltete Küche mit Essbereich, ein separates Wohnzimmer mit Kaminofen, eine Terrasse und einen kleinen Balkon. Die Terrasse bietet eine gemütliche Atmosphäre und lädt besonders am Morgen zu einem Frühstück in der Sonne ein.
Dazu gehören außerdem ein Außenstellplatz direkt am Haus sowie ein Abstellraum im Keller.
- Einbauküche mit Geräten (im Mietpreis enthalten)
- Granitboden in der Küche
- Eichenparkettböden in allen Zimmern
- Tageslichtbad mit Wanne und Dusche
- Gäste WC mit Pissoir (innenliegend)
- Kaminofen im Wohnbereich
- kleiner Balkon (westlich ausgerichtet)
- Terrasse (südlich ausgerichtet)
- Abstellraum
- Waschmaschinenanschluss in der Wohnung (in der Küche integriert)
Die Wohnung befindet sich im begehrten Stadtteil City-Ost, nur etwa 15 Gehminuten vom Wiesbadener Hauptbahnhof entfernt. Diese zentrale Lage überzeugt durch ihre hervorragende Infrastruktur und die schnelle Anbindung an die Autobahnen A66 Richtung Frankfurt sowie A671 Richtung Mainz. In der direkten Umgebung befinden sich ein neuer Tegut-Markt, gehobene Restaurants, Cafés, eine Apotheke sowie diverse Fachärzte und das St. Josefshospital - alles bequem fußläufig erreichbar. Die Kombination aus urbanem Komfort, exzellenter Verkehrsanbindung und angenehmer Nachbarschaft macht diese Adresse besonders attraktiv für Berufstätige mit hohen Ansprüchen an Wohnqualität und Lage.
Für eine schnelle Bearbeitung Ihrer Anfrage nutzen Sie bitte das Kontaktformular und geben Sie Ihre Telefonnummer an, wenn Sie eine Besichtigung wünschen.
Für Ihre Bewerbung benötigen Sie eine Selbstauskunft (diese können Sie online ausfüllen über den Link unten im Exposés im Abschnitt "Ergänzende Links"), die letzten 3 Gehaltsabrechnungen und eine SCHUFA-Auskunft (nicht älter als 3 Monate; geht am Schnellsten über ImmoScout24).
Alle Angaben sind ohne Gewähr und basieren ausschließlich auf Informationen, die vom Auftraggeber zur Verfügung gestellt wurden. Das Unternehmen WAGNER IMMOBILIEN, Immobilienmakler in Wiesbaden, übernimmt keine Gewähr für die Vollständigkeit, Richtigkeit und Aktualität dieser Angaben. Dies trifft auch für Grundrisse zu. Überarbeitete Grundrisse können Abweichungen vom tatsächlichen Grundriss enthalten. Ebenso wird für nicht bekannte Umstände keine Haftung übernommen.
Ansprechpartner

Mobil: +49 162 2640513
c.hornung@makler-wiesbaden.de
Ich bin damit einverstanden, dass mir Karten von Google angezeigt werden. Es gelten die Datenschutzbedingungen von Google (https://policies.google.com/privacy).
Ich bin einverstanden