Objektart
Adresse
Objektdaten
Informationen
Ausstattung
Details
The landlord will accept an American rental contract. We do speak English in our office and can assist you with the entire processing.
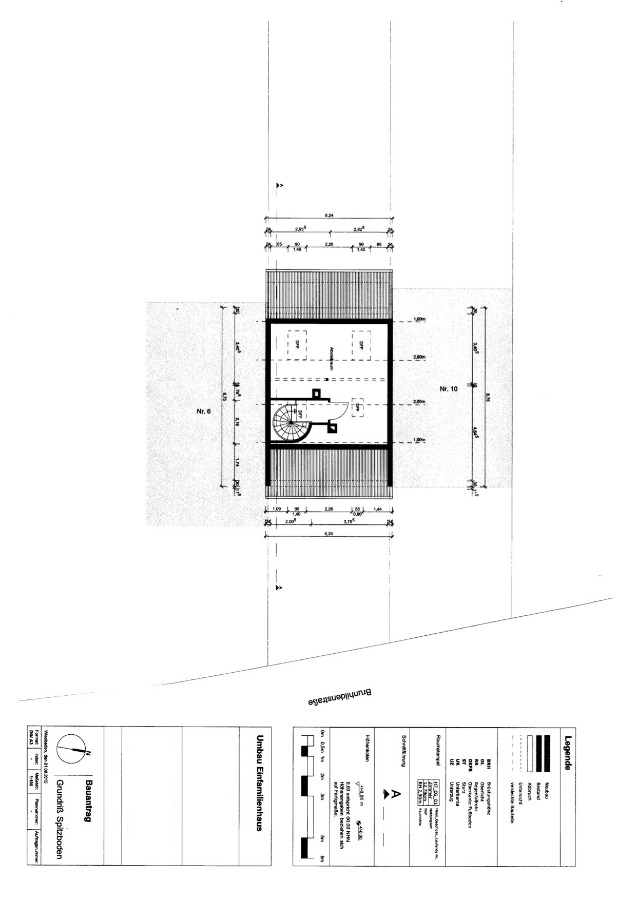
This pleasant and cosy town house was recently renovated. The house is best suitable for 1-2 persons with a maximum of 1 child. The house comes with a beautiful garden in the back.
1st floor: entrance entrance hall, living and dining, open kitchen, guest toilet, terrace.
2nd floor: 2 bedrooms, bathroom, open room for home office, balcony.
Top floor: large open studio.
Basement: laundry, 2 cellar, back exit to the garden.
- built-in kitchen
- wooden floors
- day light bathroom with tub, shower and bidet
- modernized guest toilet
- bathroom with daylight, tub, shower, Toilette and bidet
- double-glazed windows
- terrace with large garden
- storage spaces in the basement
- laundry and dryer room
Above mentioned utility charges, plus the costs for gas and electricity.
For a quick processing of your inquiry please use the contact form and enter your telephone number. All information is given without any guarantee and is based exclusively on information provided by the customer (landlord). The company WAGNER IMMOBILIEN assumes no liability for the completeness, correctness and up-to-dateness of this information. This also applies to ground plans. Revised ground plans may contain deviations from the actual floor plan. No liability is assumed for unknown circumstances.
Ansprechpartner
Mobil: +49 162 2640513
c.hornung@makler-wiesbaden.de
Downloads
Energieausweis (Bedarfsausweis)
50 kWh / (m²*a) Endenergiebedarf
50 kWh / (m²*a) Endenergiebedarf
50 kWh / (m²*a) Endenergiebedarf
Weitere Informationen
| Wesentlicher Energieträger | Gas |
| Energieausweis Ausstelldatum | 2022-10-20 |
| Energieausweis gültig bis | 19.10.2032 |
| Energieausweis Jahrgang | ab dem 1.5.2014 |
| Energieausweis Werteklasse | B |
| Energieausweis Baujahr | 1958 |
| Energieausweis Gebäudeart | Wohngebäude |
| Heizung | Zentralheizung |
| Befeuerung | Gas |
