Bezugsfertiges, modernisiertes Reihenhaus in Waldrandlage | WAGNER IMMOBILIEN
Objektart
Adresse
Objektdaten
Informationen
Ausstattung
Details
Dieses schöne und gepflegte Reihenmittelhaus wurde aufwendig renoviert und modernisiert. Es befindet sich in einer ruhigen Lage in einem angenehmen Wohngebiet mit freundlicher Nachbarschaft. Es liegt unmittelbar am Ober-Olmer Wald. Zum Haus gehört eine Garage. Hinter der Garagenreihe gibt es kostenlose, öffentliche Parkplätze.
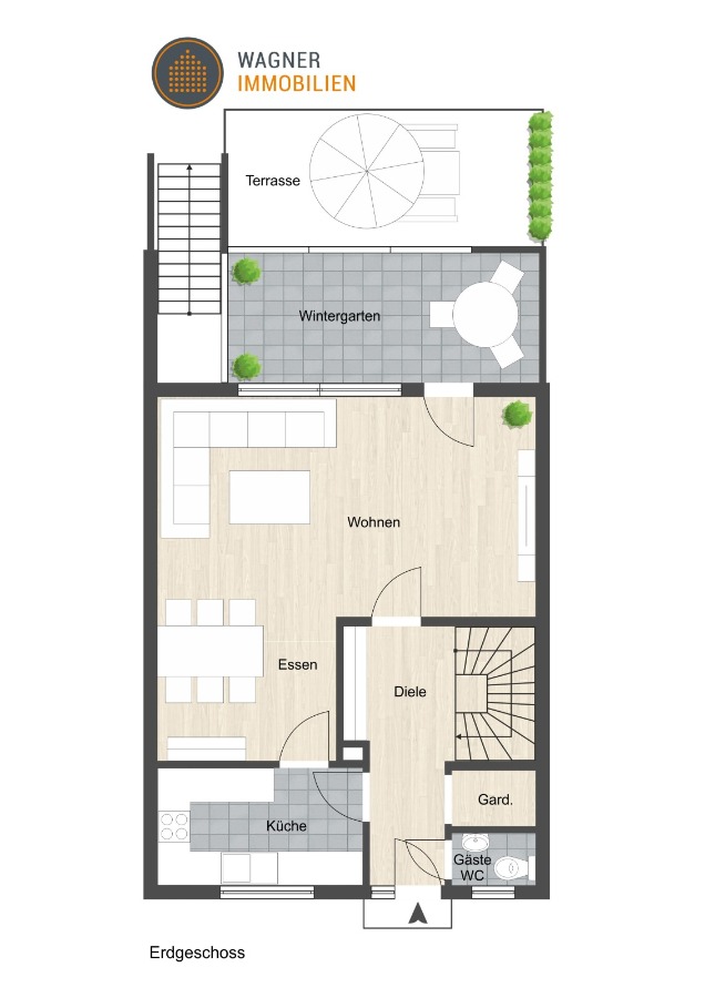
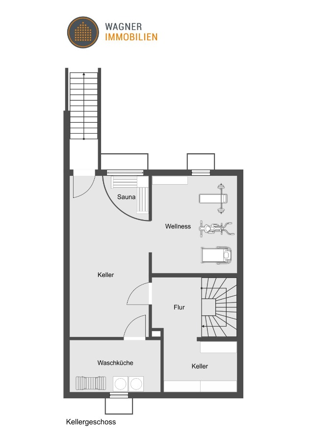
Aufteilung (eine genaue Raumaufteilung finden Sie in den Grundrissen):
Kellergeschoss: 2 Kellerräume, Waschküche und Wellnessraum.
Erdgeschoss: Eingang, Gäste-WC, Küche, Wohn- und Esszimmer, Wintergarten und Terrasse.
Obergeschoss: Bad, 3 Schlafzimmer.
Dachgeschoss: großes Zimmer, Abstellraum.
In den vergangenen 10 Jahren wurden einige Renovierungen und Modernisierungen vorgenommen. Eine genaue Aufstellung kann als PDF-Datei heruntergeladen werden.
Grundstücksgröße Haus und Garten: 245 m²
Grundstücksgröße Garage: 15 m²
Gesamte Grundstücksflächen: 260 m²
Die Fernwärme kostet monatlich ca. 280 EUR incl. Warmwasser.
- Parkett- und Laminatböden
- Gäste-WC mit Tageslicht
- Bad mit Tageslicht, Badewanne und Dusche
- Kochen mit Gas oder Strom möglich
- Einbauküche
- Infrarot-Sauna
- Wellnessbereich
- Rollläden
- Netzwerkverkabelung
- Wintergarten
- Gartenhaus mit Stromanschluss
Mainz-Lerchenberg, auch liebevoll "Medienberg" genannt, ist ein junger und grüner Stadtteil im Nordwesten von Mainz, entstanden ab 1962 im Zuge der 2000-Jahr-Feier der Stadt. Der Stadtteil bietet eine gelungene Mischung aus mehrgeschossigen Wohngebäuden, Reihenhäusern und Bungalows - ideal für Familien und alle, die urbanes Wohnen mit viel Grün verbinden möchten.
Geografisch eingebettet zwischen dem Ober-Olmer Wald und der Draiser Senke, liegt Lerchenberg hoch über Mainz - eine Lage mit direkter Autobahnanbindung (A 60) sowie ausgezeichnetem ÖPNV-Anschluss durch die Mainzelbahn (Linien 51 und 53), ergänzt durch Buslinien wie 54 und 66.
Schulen & Kindergärten
Die Grundschule Lerchenberg (Hindemithstraße 1-5) sowie die Realschule plus im Carl-Zuckmayer-Schulzentrum befinden sich zentral im Viertel.
Es gibt vier Kindertagesstätten im Stadtteil, darunter integrative Einrichtungen, eine Kita auf dem ZDF-Gelände, und sowohl eine evangelische als auch eine katholische Einrichtung.
Einkaufsmöglichkeiten
Das Einkaufszentrum Lerchenberg, im Zentrum zwischen Hindemith- und Regerstraße, wurde 2023 frisch saniert und als barrierefreie, attraktive Fußgängerzone mit Einkaufsmöglichkeiten des täglichen Bedarfs neu gestaltet.
Dort finden sich Supermarkt, Drogerie, Imbisse, Eiscafé, auch ein vietnamesisches Restaurant. Für größere Einkäufe lohnt sich ein Abstecher nach Bretzenheim, etwa zum Gutenbergcenter.
Freizeit & Naherholung
Vereinsleben: Am Lerchenberg gibt es zahlreiche Vereine - z. B. den Sportclub Lerchenberg e.V., mehrere Karnevalsvereine, Kirchenchöre sowie Jugend- und Sozialzentren wie Jugendcafé, Regenbogentreff oder Juca. Diese bieten eine breite Auswahl an Freizeitangeboten für alle Altersgruppen.
Sportstätten: Die Bezirkssportanlage (Rilkeallee 58) ist bestens ausgestattet mit Kunstrasenplatz, Tennisplätzen, Rundlaufbahn und Sprunggrube.
Grüne Umgebung: Spaziergänge lassen sich ideal in parkähnlicher Umgebung genießen - der nahe Ober-Olmer Wald bietet reichlich Raum zur Erholung und Bewegung in der Natur.
Kulturelle Angebote: Die Stadtteilbibliothek in der Hindemithstraße lädt zum Schmökern ein. Weiterhin finden in Vereinen oder im ZDF-Foyer gelegentlich kulturelle Veranstaltungen statt.
Gas tro & Nachtleben: Wer eine größere Auswahl an gastronomischer Vielfalt oder Nachtleben sucht, wird eher in die Innenstadt von Mainz fahren - dafür steht eine hervorragende ÖPNV-Anbindung zur Verfügung.
Für eine schnelle Bearbeitung Ihrer Anfrage nutzen Sie bitte das Kontaktformular und geben Sie Ihre Telefonnummer an, wenn Sie eine Besichtigung wünschen.
Alle Angaben sind ohne Gewähr und basieren ausschließlich auf Informationen, die vom Auftraggeber zur Verfügung gestellt wurden. Das Unternehmen WAGNER IMMOBILIEN, Immobilienmakler in Wiesbaden, übernimmt keine Gewähr für die Vollständigkeit, Richtigkeit und Aktualität dieser Angaben. Dies trifft auch für Grundrisse zu. Überarbeitete Grundrisse können Abweichungen vom tatsächlichen Grundriss enthalten. Ebenso wird für nicht bekannte Umstände keine Haftung übernommen.
Ansprechpartner
Mobil: +49 152 33794534
a.rodin@makler-wiesbaden.de
Ich bin damit einverstanden, dass mir Karten von Google angezeigt werden. Es gelten die Datenschutzbedingungen von Google (https://policies.google.com/privacy).
Ich bin einverstanden